リノベーション前の住まいは、築約40年の軽量鉄骨住宅。1階は和室や台所などが細かく区切られた昔ながらの間取りで、動線が使いづらく、暮らしにくさを感じていました。部屋同士のつながりが弱く、日当たりの良さを十分に活かしきれていない点も課題のひとつでした。
また段差が多く、将来的な生活を考えると不安が残る状態。窓の数が多くサイズも大きかったため、冬場は特に寒さを感じやすく、断熱性能の面でも改善が必要でした。一方で、軽量鉄骨住宅ならではのしっかりとした構造があり、建て替えではなく、住まいを活かしたリノベーションが現実的な選択肢となっていました。
| リフォーム箇所 | 1階全面リフォーム | 所在地 | 西彼杵郡長与町 |
|---|---|---|---|
| 間取り | 4DK→3LDK | 構造 | 軽量鉄骨造2階建て |
| 延床面積 | 80.00㎡ | 築年数(完工時) | 約40年 |
| 建築費 | 1200万円 | 施工期間 | 約2ヶ月間 |
| 設計・施工 | すまいるリノベーション |
リノベーション前の1階は、和室や洋室、台所がそれぞれ独立し、動線が分かれた間取りでした。段差が多く、冬場は寒さを感じやすい点も課題となっていました。 そこで1階全体の間取りを見直し、LDKを住まいの中心とした1LDKプランへ変更。対面キッチンを採用し、明るく開放的な空間を実現しました。 和室は洋室へと変更し、1階に寝室を確保。将来を見据え、階段を使わずに生活が完結する、暮らしやすい住まいへと生まれ変わっています。
築約40年の軽量鉄骨住宅を、これからの暮らしに合わせてリノベーションしたF様邸。ご夫婦お二人での生活を見据え、1階だけで日常生活が完結する住まいを目指しました。構造を活かしながら間取りを再構築し、寒さや使い勝手といった長年のお悩みを解消。将来の安心と、今の暮らしやすさを両立したリノベーション事例です。
ご主人が70歳前後になられたことをきっかけに、これから先の暮らしを見据えた住まいづくりを考え始められたF様。1階に和室や台所が分かれて配置された間取りは、動線が使いづらく、寒さや段差も気になっていたそうです。
今回は「こうしてほしい」という具体的な要望よりも、将来を見据えて、今の住まいをどう活かすのがよいかをプロの視点で提案してほしい、というご相談でした。そこで、1階で生活が完結する間取りと、断熱性能の向上を軸に、無理のないリノベーション計画をご提案しました。
デザインは、長く住み続けても飽きのこないシンプルさを大切にしました。
内装は、白とグレージュを貴重とした落ち着いた配色に。空間全体に統一感を持たせることで、日々の暮らしに自然と馴染む住まいを意識しています。
また、見た目のデザインだけでなく、明るさや動線、使い勝手にも配慮。生活の中心となるLDKを軸に、無理なく過ごせる空間構成とし、将来の変化にも柔軟に対応できる住まいへと整えました。
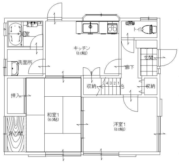
リノベーション前の1階は、和室・洋室・台所がそれぞれ独立した間取りで、空間が細かく区切られていました。

【施工前】1階部分の間取り
動線が分かれ、日常生活の中で移動が多くなりやすく、暮らしにくさを感じていたそうです。
また、水まわりと居室の配置も使い勝手がよいとは言えず、将来を見据えた住まいとしては改善が必要な状態でした。
加えて、段差が多く、冬場は寒さを感じやすい点も課題に。
窓の数が多くサイズも大きかったため、断熱面でも不安がありました。1階で生活を完結させるには、間取りを大きく見直す必要がありました。

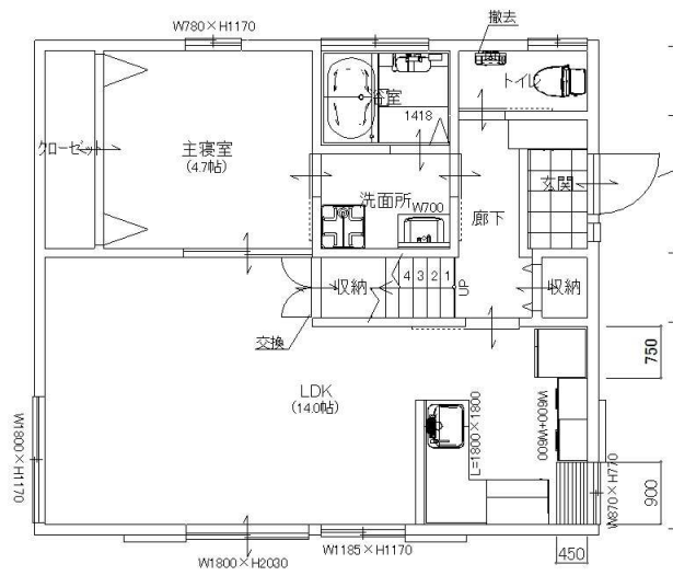
【施工後】1階部分の間取り
リノベーション後は、1階全体の間取りを再構築し、LDKを住まいの中心とした1LDKプランへと変更しました。
キッチンは省スペースで効率よく作業できるL型を採用。
対面キッチンで、リビング・ダイニングと一体感のある空間に。日当たりの良い位置にLDKを配置することで、明るく心地よい空間を実現しています。
また、和室は洋室へと変更し、1階に寝室を確保。これにより、将来的にも階段を使わずに生活できる住まいとなりました。
水まわりの位置や動線も整理し、移動のしやすさと安全性に配慮。1階だけで日常生活が完結する、これからの暮らしを見据えた間取りへと生まれ変わっています。
F様邸は軽量鉄骨住宅のため、間取り変更にあたっては構造上残す必要のある耐力壁がありました。
そこで、壁をただ抜くのではなく、「残すべき壁」を前提にプランを検討。耐力壁の位置を活かしながら空間を整理し、暮らしやすさを高める間取りをご提案しました。
構造の安心感を保ちつつ、大きく印象を変えるリノベーションを実現しています。
将来を見据え、生活の中心となる空間をすべて1階に集約。
LDKを住まいの中心に配置し、隣接して寝室を設けることで、階段を使わずに日常生活が完結する間取りとしました。移動距離を短く抑えることで、今だけでなく、これから先も無理なく暮らせる住まいを目指しています。
リノベーション前は窓の数が多く、サイズも大きかったため、冬場の寒さや家具配置のしにくさが課題でした。
そこで、窓の大きさや数を見直し、断熱性能の高い窓へと変更。窓サイズの変更に合わせ、外観も一部補修しています。
室内の温熱環境を整えると同時に、壁面を有効活用できるようになり、暮らしやすさが大きく向上しました。
水まわりは配置を見直し、移動がしやすい動線へと整理しました。
段差をできるだけ抑え、将来的にも安心して使えるようバリアフリーを意識した設計としています。毎日使う場所だからこそ、使い勝手と安全性を大切にしました。
間取りを見直し、1階で暮らしが完結する住まいへと生まれ変わったF様邸。LDKを中心に、寝室や水まわりが無理なくつながり、日々の移動がスムーズになりました。空間同士がゆるやかにつながることで、家全体に広がりと一体感が生まれています。
将来の暮らしを見据え、1階で生活が完結する住まいへと整えたF様邸。軽量鉄骨住宅ならではの構造に配慮しながら、間取りや窓計画、動線を丁寧に見直すことで、今の暮らしやすさとこれからの安心感を両立しました。
見た目だけを新しくするのではなく、住み続けることを前提に、一つひとつの選択を重ねたリノベーションです。将来を考えた住まいづくりをご検討の方は、ぜひすまいるリノベーションへご相談ください。