今回H様は、中古住宅をご購入されたことをきっかけに、外構工事と内装リノベーションのご相談をいただきました。このままでも住める状態ではありましたが、築35年ということもあり、間取りや設備の見直しが必要でした。ご家族のライフスタイルに合った住まいへとリノベーションしました。
| リフォーム箇所 | LDK・寝室・水回り3点(キッチン・洗面室・トイレ) | 所在地 | 長崎市平山台 |
|---|---|---|---|
| 間取り | 3LDK | 構造 | 木造戸建て |
| 延床面積 | = | 築年数(完工時) | 築35年 |
| 建築費 | 1500万円 | 施工期間 | 3ヶ月 |
| 設計・施工 | すまいるリノベーション |
築35年の中古住宅をご購入されたH様。新しい住まいでの生活をより快適にするため、内装リノベーションをご計画されました。お打ち合わせを進めていた頃にはお腹に赤ちゃんもいらっしゃり、これから生まれてくるお子様との暮らしや、ワンちゃんとの生活を見据えながら、住まい全体を使いやすく整えていきました。
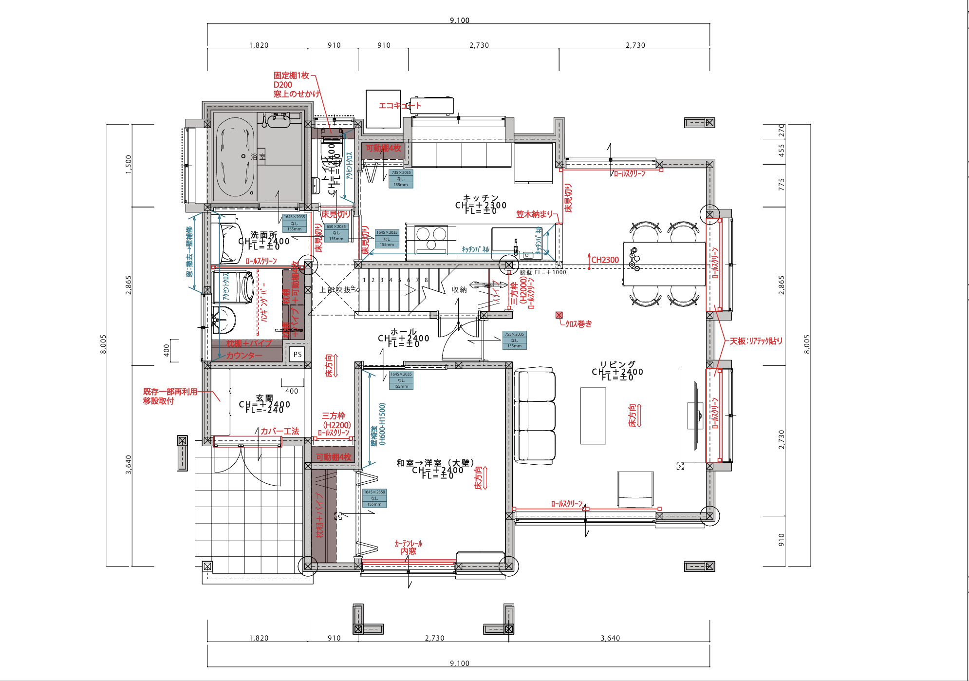
玄関まわりのスペースを活用した収納やランドリールームの新設、和室から洋室への変更、キッチンのレイアウト変更など、日々の暮らしやすさを意識した間取りの見直しを行っています。また、築年数が経過した住まいでも安心して過ごせるよう、床の補修や断熱材の充填など、見えない部分の改善にも配慮しました。
これから家族が増える暮らしの中で、ご夫婦とワンちゃん、そして新しい家族が心地よく過ごせる住まいを目指したリノベーションです。
・LDKの独立型キッチンを移設し、できるだけ対面に近いレイアウトにしたい
・床の傾きを直して安心して住めるように、事前に必要な工事の提案をしてほしい
この2点が大きなご要望でした。
ヒアリングしていく中で、こんなご要望も出てきました。
・玄関収納があったスペースを活用し、洗面室やランドリースペースとして使いやすい間取りにしたい
・洗面所は洗面台の交換と内装工事を行い、より使いやすく整えたい
・玄関横の和室を、ご夫婦の寝室として使えるフローリングの洋室に変更したい
・寝室は断熱性を高めるため、内窓を設置したい
・LDKの独立型キッチンを移設し、できるだけ対面に近いレイアウトにしたい
・収納や建具の位置を見直し、ソファーなどの家具が置きやすいLDKにしたい
・2階の10畳の部屋を2部屋に分けるなど、間取りを見直したい
・2階の和室はフローリングの洋室へ変更したい
・押入れを活用し、2階にトイレを新設したい
上記のお客様からいただいたご要望をもとに、間取りや生活動線を一つ一つ整理しながらプランを作成しました。
玄関まわりでは、既存の玄関収納があったスペースを活用し、洗面室として使えるよう間取りを変更しました。また、2階には新しくトイレを設けることで、生活の利便性を高めました。既存の押入れスペースを活用しながら設備を新設することで、住まい全体の使い勝手を向上させています。
LDKでは独立型だったキッチンの位置を移設し、対面風のレイアウトへ変更しました。空間の広がりを感じながら家族とのコミュニケーションも取りやすい、開放感のあるLDKとなるよう計画しています。
築35年の住宅ということもあり、床の傾きの調整や断熱材の充填など、見えない部分の改善もあわせて行いました。さらに工事中にはシロアリ被害が確認されたため、防蟻処理を実施し、今後も安心して住み続けられる住まいとなるよう対策を行っています。


解体工事からスタートし、間取り変更の木工事や床補強、断熱工事などを順に進めていきます。住まいの状態を確認しながら、一つ一つ丁寧に施工を行い、新しい暮らしに合わせた住まいへと整えていきました。
リノベーション工事は、まず既存の内装や設備を解体するところから始まります。和室の床や押入れ、既存のキッチンなどを撤去し、これから新しい間取りへ変更するための準備を進めていきます。解体を進めることで、普段は見えない構造部分の状態も確認することができ、住まいの状態をしっかり把握しながら工事を進めていきます。

防蟻工事
解体後、床下や構造部分を確認したところ、シロアリによる木部の腐食が一部見受けられました。そのため、被害箇所の確認とあわせて、防蟻剤を塗布し予防処理を行いました。今後も安心して住み続けていただけるよう、見えない部分の対策もしっかり行っています。

断熱・床補強工事
築年数が経過していたこともあり、床の傾きが見られる部分があったため、床の下地を調整しながら補強を行いました。また、床を張り替えるタイミングにあわせて断熱材を充填し、足元の冷えを軽減できるよう改善しています。見た目のリフォームだけでなく、住まいの快適性を高めるための工事もあわせて行いました。

間取り変更の木工事
新しい間取りをつくるための木工事へと進みます。壁の位置を変更したり、新たな間仕切りを設けたりしながら、お客様のご要望に合わせて住まいの形を整えていきます。今回のリノベーションでは、玄関まわりの洗面所を広げる工事や、和室から洋室への変更、多くの木工事を行いました。図面だけでは見えにくい部分も、一つ一つ形にしながら新しい住まいの空間がつくられていきます。
玄関ドアはLIXILの「リシェント」を採用しました。既存の枠を活かして新しいドアを取り付けるカバー工法のため、外壁を大きく壊すことなく交換が可能です。断熱性や防犯性も向上し、住まいの印象も明るく生まれ変わりました。

既存のエコキュートも長年使用されていたため、新しいエコキュートへ交換を行いました。給湯設備は毎日の生活に欠かせない設備のため、機器の更新を行うことで安心して使用できるよう整えています。既存配管の確認や接続作業を行いながら、新しいエコキュートの設置と試運転を行い、安全に使用できる状態へと仕上げました。
洗面室はスペースを広げ、ワンちゃんを洗える専用のコンパクトシンクを新たに設置しました。ペットとの暮らしを考え、使いやすさにも配慮した計画となっています。また、収納面についても見直しを行い、日用品や洗濯用品をすっきりと収納できるよう可動棚の設置も行いました。家事動線も意識しながら、使い勝手の良い洗面空間へと整えています。

2階には新しくトイレを設け、これまでよりも使いやすい住まいとなるよう設備を整えました。新設にあたっては給排水の配管工事を行い、もともと押入れだった箇所にトイレスペースをつくっています。また、1階・2階ともにアクセントクロスを取り入れることで、空間に変化を持たせたトイレ空間に仕上げました。




洗面スペースには造作で可動棚を設置しました。収納する物の大きさや使い方に合わせて棚の高さを調整できるため、タオルや日用品や生活用品をすっきりと整理しやすくなります。限られたスペースを有効に活用できるよう、使い勝手を考えながら施工を行いました。

解体工事から始まり、間取り変更の木工事や設備工事、内装仕上げなど、各工程を経てリノベーション工事が完成しました。中古住宅の良さを活かしながら、ご家族のこれからの暮らしに合わせた住まいへと生まれ変わりました。
採用したキッチンはLIXILの「ノクト」。扉カラーはブラックスタッコを選び、空間全体を引き締める落ち着いた雰囲気のキッチンに仕上がりました。
こちらの要望を丁寧に聞いていただき、間取りの変更や収納、ランドリースペースなど、生活しやすい提案をしていただけたのがとても良かったです。工事の途中でシロアリ被害が見つかった時も、しっかり説明して対応していただけたので安心できました。完成した住まいは、以前よりも明るく使いやすい空間になり、とても満足しています。これから新しい生活が楽しみです。
築35年の中古住宅を、これからの暮らしに合わせて内装リノベーションしました。間取りの見直しやキッチンのレイアウト変更、洗面室の拡張などを行い、家事動線や使い勝手を整えています。また、床の補強や断熱材の充填、防蟻処理など見えない部分にも配慮し、安心して長く住み続けられる住まいへと改善しました。ご家族とワンちゃんが快適に過ごせる、暮らしやすさを大切にしたリノベーションとなりました。
H様
この度は、外構工事とあわせてご依頼いただき誠にありがとうございました。これから新しいご家族を迎え、にぎやかな毎日が始まることと思いますが、H様ご家族皆さまが心地よく暮らせる住まいとなっていれば、私たちも嬉しく思います。今後もお住まいのことで気になることやお困りごとがございましたら、いつでもお気軽にご相談ください。