築47年の平屋にお住まいだったH様。これまで大きなリフォームは行わず、大切に住み続けてこられましたが、冬場の寒さや使い勝手の面で、少しずつ不便さを感じるようになっていました。
内装はクロス仕上げが中心で、経年による劣化も見られる状態。また、白蟻の痕跡が見つかったことをきっかけに「これから先も安心して暮らせる住まいにしたい」という想いが強まり、住まい全体を見直すことに。
間取りは大きく変えず、素材や性能を見直しながら、快適さと安心感を高めるリフォームを検討されていました。
| リフォーム箇所 | 全面リフォーム | 所在地 | 長崎県諫早市 |
|---|---|---|---|
| 間取り | 2LDK | 構造 | 木造 |
| 延床面積 | = | 築年数(完工時) | 47年 |
| 建築費 | 約2450万円 | 施工期間 | 約4ヶ月 |
| 設計・施工 | すまいるリノベーション |
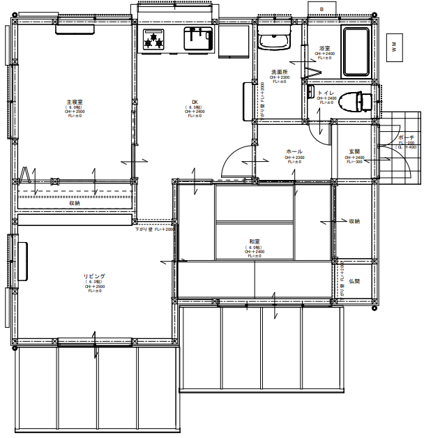
間取りはリフォーム前後ともに2LDK。大きな変更は行わず、間仕切りを見直すことでLDKを拡張し、住まいの中心となる空間をより広々と整えました。小上がりの和室を設け、LDKと緩やかにつながる、使い勝手のよい間取りとしています。
築47年の平屋を、これからの暮らしに合わせて全面リフォーム。
寒さや使い勝手への不安を解消しながら、ヒノキの無垢床や断熱塗料を取り入れ、あたたかさと質感を大切にした住まいへと生まれ変わりました。
平屋ならではの動線を活かし、LDKを中心に、心地よく過ごせる空間を整えています。
築47年の平屋にお住まいだったH様。
これまで大きなリフォームは行わず、大切に住み続けてこられましたが、冬場の寒さや使い勝手の面で、少しずつ不便さを感じるようになっていました。
内装はクロス仕上げが中心で、経年による劣化も見られる状態。また、白蟻の痕跡が見つかったことをきっかけに、「これから先も安心して暮らせる住まいにしたい」という想いが強まり、住まい全体を見直すことを決意されました。
ご要望として特に強かったのが、素材へのこだわり。
「クロスは使わず、質感を感じられる仕上がりにしたい」
「見た目だけでなく、あたたかさも大切にしたい」
…といった想いが、最初の打ち合わせからはっきりと伝わってきました。
また、平屋というコンパクトな住まいだからこそ、動線はできるだけシンプルに、日々の暮らしがしやすいことも大切にしたいポイントでした。
H様邸のリノベーションで大切にしたテーマは「今後、住まいのことで心配がないようにしておきたい」という想いです。

間取りはリフォーム前後ともに2LDKですが、大きな変更は行わず、間仕切りを見直すことでLDKを拡張。住まいの中心となるLDKを、より広々と、心地よく過ごせる空間へと整えました。

さらに、ヒノキの無垢床や断熱塗料を取り入れ、素材の質感と住まいの性能を見直すことで、見た目の心地よさだけでなく、一年を通して快適に過ごせる住まいへ。
素材・性能・使い勝手をトータルで整え、これからの暮らしに寄り添う、安心感のある平屋リノベーションを目指しました。
リフォーム前後ともに間取りは2LDKですが、暮らしやすさを大きく左右するLDKの広がり方に変化を持たせました。
リフォーム前は、リビング・ダイニング・キッチンがそれぞれ緩やかに区切られ、空間としては少しコンパクトな印象。平屋ならではの良さはありつつも、日常的に過ごすLDKにもう少しゆとりがほしい状態でした。

そこでリフォームでは、間仕切りを見直しながらLDKを拡張。個室の配置は大きく変えずに、LDKを住まいの中心に据え、より開放感のある空間に整えています。

また、和室は小上がりとして計画することで、LDKとゆるやかにつながる居場所に。座る・くつろぐ・来客を迎えるなど、多目的に使える空間となり、暮らしの幅が広がりました。

大きな間取り変更は行わず、動線と空間のつながりを整理することで、実際の広さ以上にゆとりを感じられる住まいへ。平屋の特性を活かしながら、これからの暮らしにフィットする間取りへと生まれ変わっています。
H様邸のリノベーションでは、見た目の美しさだけでなく、住まいの快適さと安心感を高めることを大切にしました。
床には、ヒノキの無垢材を採用。素足で歩いたときのやさしい肌触りと、木そのものが持つあたたかみが、平屋の住まいに心地よさをもたらします。時間とともに風合いが増していくのも、無垢材ならではの魅力です。
天井・壁には、断熱塗料「ガイナ」を使用。断熱性・遮熱性に優れ、夏は涼しく、冬はあたたかく感じられる室内環境をつくります。クロスを使わず、塗装仕上げとすることで、素材の質感を活かしながら、落ち着きのある空間に仕上げました。
平屋という住まいの特性を活かし、動線はできるだけシンプルに。毎日の暮らしが自然と整うよう、細かな使い勝手にも配慮しています。

今回のリフォームでは、サンルームを新調。日当たりの良さを活かし、洗濯物を干すスペースとしてはもちろん、天候に左右されず使える家事の助けになる空間として設置しています。

室内と屋外の中間のようなサンルームは、光を取り込みながら、洗濯・物干し・ちょっとした作業など、暮らしの中で多目的に活躍。コンパクトな平屋だからこそ、こうした「+αの居場所」があることで、暮らしにゆとりが生まれます。

玄関ドア横には手すりを設置し、立ち座りや出入りの動作をサポート。毎日使う場所だからこそ、安全面にも配慮しています。 
外壁や玄関まわりも一新し、落ち着きのある外観に。シンプルながら、住まい全体の印象を引き締めています。

駐車スペースから玄関までの動線には、新たに階段を設けました。高低差を解消し、安心して行き来できるよう整えています。 
トイレには手洗いカウンターを設け、使いやすく清潔感のある空間に。限られたスペースでも、快適さに配慮しました。TOTO「ピュアレストQR」のトイレは、お手入れしやすく、清潔さを保ちやすいシンプルなモデルです。

浴室の入口は引き戸を採用し、将来を見据えた使いやすさも大切にしています。今回採用した浴室は、TOTO「サザナ」。床のやわらかさと保温性に優れ、安心してくつろげるバスルームです。

玄関横にはグリーンのポストを設置し、外観のさりげないアクセントに。機能性とデザイン性を兼ね備えたポイントです。
素材選びから空間の使い方まで、ひとつひとつ丁寧に。手すりや階段の設置など、これからの暮らしを見据えた安全への配慮も随所に取り入れました。
これからの暮らしをより快適に支える住まいが、ここに完成です。
今どんな工事をしているのかが分かって、とても安心できました。また、打ち合わせから完成まで、ひとつひとつ確認しながら進められたことで、一緒に家づくりをしている感覚があり、完成までの時間も楽しめました。これから先、家のことで心配しなくていいと思えるようになったのが何よりです。
築47年の平屋を、これからの暮らしに合わせて全面リフォームしたH様邸。ヒノキの無垢床や断熱塗料ガイナを取り入れ、素材の質感と住まいの性能を高めることで、一年を通して快適に過ごせる住まいへと生まれ変わりました。
間取りは大きく変えず、LDKを中心に空間を整えることで、平屋ならではの暮らしやすさと、実際の広さ以上のゆとりを感じられる住まいに。新調したサンルームも、日々の家事を支える心強い空間となっています。
安心と心地よさに包まれた暮らしをご希望の方、私たち「すまいるリノベーション」にお任せ下さい。