築25年のマンション。水まわりの老朽化に加え、間仕切りが多く、玄関や廊下が暗く感じられる状態でした。さらに、キッチンに隣接するパントリーは西日が強く食品が管理できないため、空間の使い方に課題を抱えていました。
| リフォーム箇所 | キッチン、浴室、洗面脱衣室、パントリー、窓、内装他 | 所在地 | 長崎市 |
|---|---|---|---|
| 間取り | 4LDK | 構造 | = |
| 延床面積 | 99.19㎡ | 築年数(完工時) | 25年 |
| 建築費 | 618万円 | 施工期間 | 20日間 |
| 設計・施工 | すまいるリノベーション |
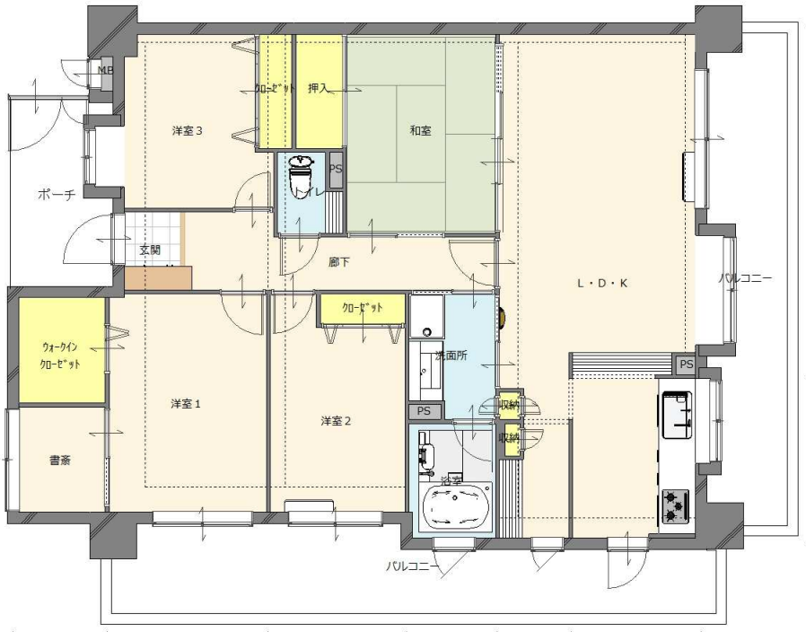
部屋数や基本的な間取りはそのままですが、キッチン横のパントリーや下がり壁によって、空間が分断され、LDKがやや閉塞感のある印象でした。そこで今回、部屋数は変えずに、キッチンに隣接していたパントリーの壁と下がり壁を撤去。視線が抜け、LDK全体に開放感が生まれ、実際の広さ以上にゆとりを感じられる空間になりました。
築25年のマンションを、光と開放感のある住まいへ。
玄関や廊下の暗さ、間仕切りによる閉塞感といった悩みを解消するため、空間のつながりを見直しました。
水まわりや内装を整えながら、奥様のセンスを活かしたコーディネートで、家族が心地よく暮らせる住まいを実現しています。
築25年のマンションにお住まいのY様ご家族。ご夫婦とお子さま、3人での暮らしです。
リノベーションを検討されたきっかけは、マンションの大規模修繕後に感じるようになった住まいの暗さでした。以前は玄関ドアから光が入っていたものの、改修後は玄関ホールや廊下が暗くなり、日中でも照明が欠かせない状態に。また、キッチン横のパントリー(元家事室)は西日が強く、暑さのために使いづらく、物置のようになっていました。
さらに、キッチンとリビングの間仕切りやパントリーの壁によって空間が分断され、全体的に閉塞感があることもお悩みのひとつでした。
「暗さを解消したい」
「もっと明るく、使いやすい住まいにしたい」
そんな想いから、ホームページやリフォーム内覧会を通じて中村工務店へご相談いただき、リノベーション計画がスタートしました。
今回のリノベーションで大切にしたテーマは、光と風が通り、家族が心地よく過ごせる住空間を作ること。

ご予算とのバランスを考えながら、空間の使い方を丁寧に見直し、間仕切りを一部撤去。キッチンまわりやリビングのつながりを改善することで、視線が抜け、開放感のある空間へと整えました。

また、廊下には開口を設けて隣室からの光を取り込み、暗くなりがちだった玄関ホールにも明るさをプラス。

パントリーの壁を取り払ったキッチンには、西日対策として内窓を設置し、暑さや結露への配慮も行っています。

奥様を中心に打ち合わせを重ねながら、内装や照明、小物のセンスも活かしたコーディネートで、
やさしく心地よい住まいが完成しました。
リノベーション前は、部屋数や基本的な間取りは変えずに使われていたものの、キッチンに隣接するパントリーや下がり壁によって、LDKの空間が区切られ、やや閉塞感のある印象でした。

特にキッチンまわりは視線が遮られ、実際の広さ以上にコンパクトに感じられていたそうです。

そこで今回のリノベーションでは、部屋数や生活動線は大きく変えず、空間の抜けをつくることに重点を置きました。

キッチン横のパントリーの壁を取り払い、さらにキッチンの下がり壁を撤去することで、LDK全体がひと続きの空間に。視線が奥まで通るようになり、明るさと開放感が大きく向上しています。

大きな間取り変更は行わず、必要な部屋はそのままに「囲われていた空間を解消する」ことで、暮らしやすさを高めたプラン。

実際の面積は変わらなくても、毎日の過ごしやすさが大きく変わる間取りへと生まれ変わりました。
今回のリノベーションでは、大きな間取り変更は行わず、今ある空間をどう心地よく整えるかを重視しました。暗さや閉塞感といったお悩みに対し、光の入り方や視線の抜けを意識したプランとしています。
キッチンまわりは、壁や下がり壁を撤去することで、LDK全体がひと続きに感じられる空間へ。
キッチンは、日々の家事を支えてくれる機能的なTOTO「ミッテ」を採用しました。レンジフードや吊戸、カウンターは既存のものを再利用。シンプルで飽きのこないデザイン空間が生まれました。
浴室にはLIXIL「リデア」を採用。ワイドな浴槽でゆったりと寛げるのはもちろん、断熱性に優れているので、毎日の入浴時間がより快適なものとなります。
洗面台には、造作家具のようなデザイン性が特長のTOTO「ドレーナ」を選択。木目調のデザインが空間にやさしいアクセントを加えています。細部に至るまで、奥様のこだわりが感じられる空間です。
トイレには、タンクレスのTOTO「GGA1」を採用。すっきりとした見た目でお手入れしやすい人気モデルです。グレーを基調とした落ち着きある空間で、スタイリッシュに生まれ変わりました。
内装はクロスを全面貼り替え、明るさと落ち着きのバランスを意識したコーディネートに。奥様のセンスが随所に活かされ、照明や小物も含めて、こだわりいっぱいの空間に仕上がっています。
和室の天井も、キッチンと同じ木目調のクロスを採用。隣接するLDKとの一体感がより強化されました。
また、西日が強く暑さの原因となっていた勝手口には、FIXタイプの内窓を設置。断熱性を高めることで、暑さや結露を軽減し、快適性の向上につなげました。
「すべてを変える」のではなく、必要なところにだけ手を加える。暮らしの質を高めるための選択を積み重ねた、等身大のマンションリノベーションです。
明るくなって、広く感じるようになりました。空間の使い方が変わって、暮らしやすくなりました。
Y様邸では、部屋数や基本的な間取りはそのままに、壁や下がり壁を見直すことで、光と開放感のある住まいへと整えました。暗さや閉塞感、西日の暑さといったお悩みに対し、空間の使い方と設備の工夫で、快適な暮らしを実現しています。
すべてを変えるのではなく、暮らしに必要なポイントを見極めて整えるリノベーション。マンションならではの制約やご予算に配慮しながら、丁寧に住まいづくりを進めています。
現代の暮らしに合わせたマンションリフォーム・リノベーションをご検討の方は、ぜひすまいるリノベーションへご相談ください。
Y様
今回は、大きな間取り変更を行わず、今ある住まいをどう活かすかを大切にしたリノベーションでした。暗さや閉塞感といったお悩みに対して、壁の取り方や光の取り込み方を工夫することで、暮らしの質を高めています。
打ち合わせでは奥様を中心に、内装や設備についてじっくりと話し合いながら進めることができました。完成後、空間の変化を実感されているご様子を見て、私たちにとっても印象に残る現場となりました。