購入された中古マンションは、暮らし始めるための土台はありつつも、設備や内装には経年による変化が感じられる状態でした。そこで今回は、リーズナブルにリフォームしたいというご要望を大切にしながら、水まわり設備の更新、クロス貼替え、建具調整など、日々の暮らしに直結する部分を中心に見直しています。
| リフォーム箇所 | 内装と水まわりの交換 | 所在地 | 長崎市 |
|---|---|---|---|
| 間取り | 変更なし | 構造 | マンション |
| 延床面積 | = | 築年数(完工時) | 築29年 |
| 建築費 | 約430万円 | 施工期間 | 約2ヵ月 |
| 設計・施工 | すまいるリノベーション |
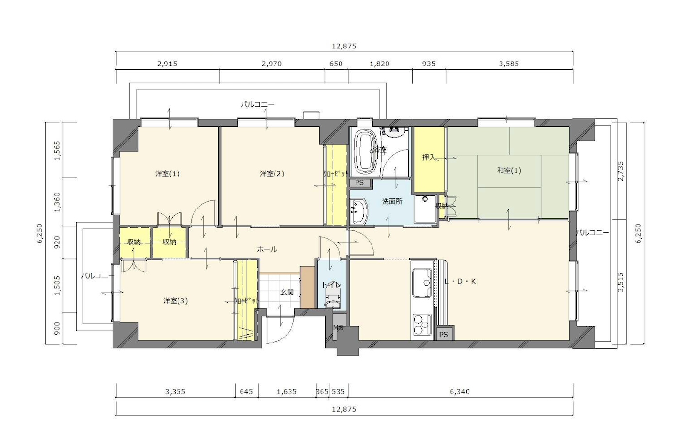
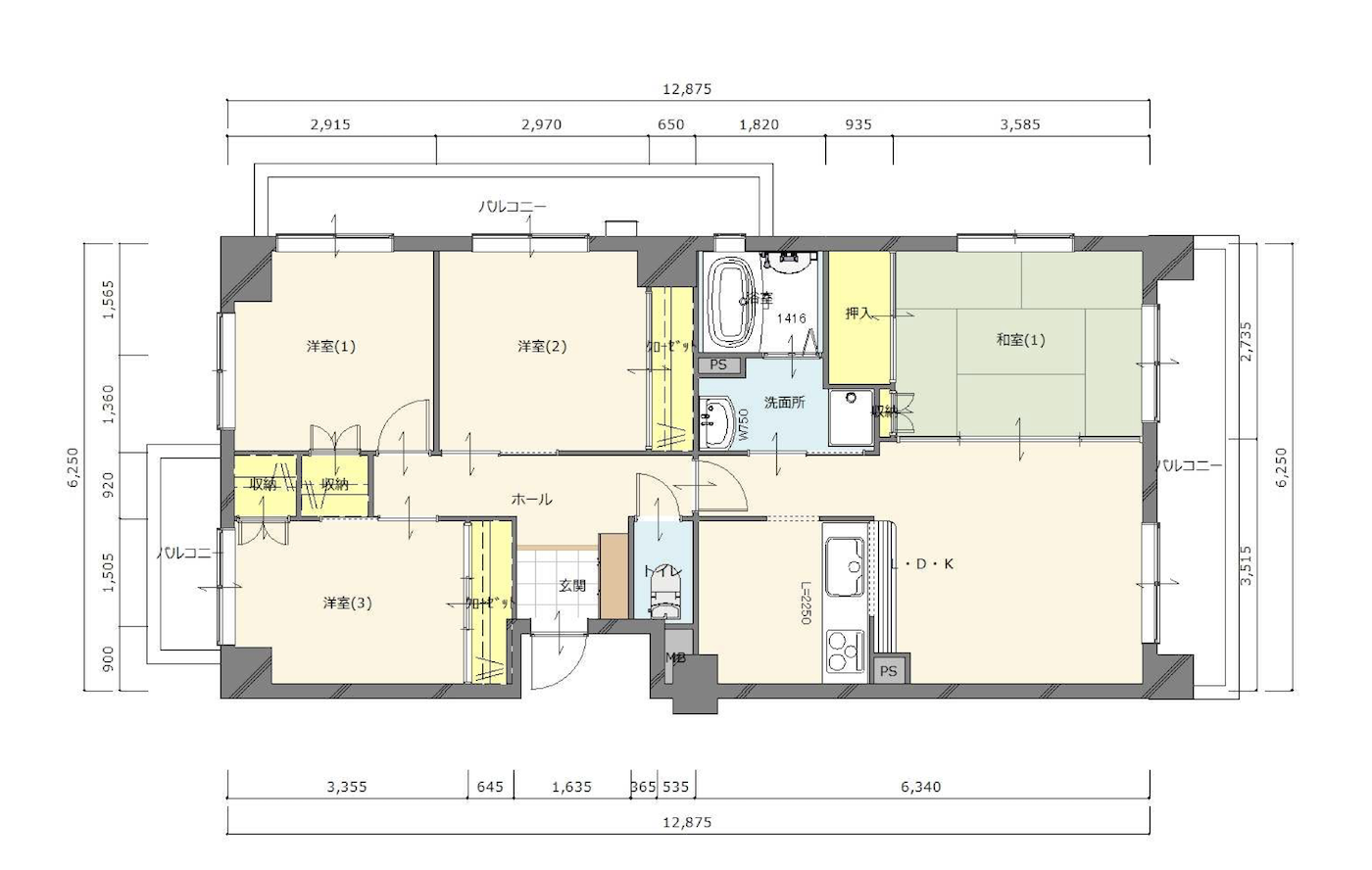
間取りは、LDKに和室と3つの洋室を備え、水まわりが中央付近にまとまった使いやすい構成です。間取りそのものは大きく変えずに、内装や設備、日々の使い勝手を見直すことで、暮らしやすさをより高めました。
K様が購入されたマンションは築29年。
内装や設備には経年による変化が見られ、これからの暮らしに向けて見直しが必要な状態でした。
・間取りはそのまま活かしたい
・必要な設備や内装を見直したい
・できるだけコストは抑えたい

天井のクロスが剥がれている様子

・設備は、キャンペーン期間中というタイミングも活かし、展示品を上手に採用
・クロスは、コストバランスのよいものを選定
・建て付けの悪い建具の調整や、網戸の張り替えにも対応
使える部分は活かしながら、必要なところをしっかり見極めて整えることで、限られた予算の中でも、これからの毎日を気持ちよく過ごせる住まいへ。満足度の高いリフォームとなるようご提案しました。
今回の設備更新では、キャンペーンのタイミングを活かして展示品を採用しました。
展示品は、価格を抑えられるだけでなく、実物を確認しながら選べるため、仕上がりのイメージを持ちやすいのも特長です。コストバランスに配慮しながら、必要な設備を無理なく刷新できたことも、今回のリフォームのポイントとなりました。
洗面台もその一つです。

洗面台は、展示品のタカラスタンダード「ファミーユ」です。
洗面台には、タカラスタンダード「ファミーユ」を採用しました。お手入れしやすい素材感と、毎日使いやすい収納力を備えており、コストにも配慮しながら心地よい洗面空間を叶えています。
また、浴室にはLIXIL「リノビオ」、キッチンにはLIXIL「シエラ」を新規採用しました。水まわり設備を中心に更新することで、使い勝手だけでなく空間の印象も一新しています。


浴室は、LIXIL「リノビオ」に新しく入れ替えました。毎日使う場所だからこそ、経年を感じやすい水まわりを一新することで、住まい全体の満足感も高まっています。

シャワーは、スライドバー付きで高さ調整がしやすく、ご家族それぞれが使いやすい仕様です。メタル調のすっきりとしたデザインが、グレー系の壁パネルとも調和し、浴室全体をスタイリッシュで上質な印象に仕上げています。
洗面所・トイレ・LDK・玄関ホール・各洋室・和室まで、住まい全体の壁や天井のクロスを貼り替えました。コストを意識しつつも、毎日を気持ちよく過ごせるよう、清潔感のある明るい空間づくりを大切にしました。


和室の襖はそのまま活かし、手を加える部分と残す部分のバランスを見ながら進めました。必要なところを丁寧に整えることで、住まい全体にすっきりとした心地よさが生まれました。
水まわりでは、設備更新だけでなく、毎日のお手入れのしやすさにも配慮しています。

キッチンにはキッチンパネル、トイレは3面パネル、洗面台左面にはパネルを施工し、水はねや汚れが気になる場所もお手入れしやすい仕様にしました。汚れても拭き取りやすく、日々の掃除の負担を減らせるため、気持ちよく使い続けられるのも魅力です。
以前のキッチンは、使い慣れたベーシックなつくりでしたが、コンロまわりの細かな凹凸やタイル壁の目地など、お手入れの手間がかかりやすい部分もありました。

キッチンには、LIXILの「シエラ」を採用しました。IH仕様で日々のお手入れがしやすく、使いやすさと掃除のしやすさを両立した、すっきりとしたキッチン空間に仕上がっています。

レンジフードには、油煙の広がりを抑えながら油分をしっかり捕集する「よごれんフード」を採用しています。お手入れのしやすさに加え、すっきりとした見た目で、キッチン空間をより快適にしてくれます。
今回のリフォームでは、空間の印象を整えるだけでなく、日常の使い勝手にも配慮しました。
建て付けの悪かった建具は調整し、必要に応じて下部をカットするなどして開閉性を改善。あわせて、傷みの見られた網戸も張り替え、細部まで快適に使える住まいへと見直しています。
こうした細やかな対応の積み重ねが、暮らしやすさを高める大切な要素となっています。

K様邸では、間取りはそのままに、設備の入れ替えや内装の貼り替え、建具の調整などを丁寧に行い、暮らしやすさを高めました。
展示品の活用や既存部分の見極めによって、予算に配慮しながらも、納得感のある住空間を実現しています。
今ある住まいの魅力を大切にしながら、自分たちらしい暮らしをかたちにしたい方は、ぜひすまいるリノベーションへご相談ください。
K様
中古マンション購入後のリフォームということで、限られたご予算の中でも満足度の高い住まいになるよう、設備の選び方や工事内容を丁寧に整理しながら進めました。展示品の活用や既存を活かす工夫によって、無理なくきれいで暮らしやすい住まいに仕上がったと思います。今後も何かお困りごとがありましたら、いつでもお気軽にご相談ください。