水まわり設備機器は老朽化しており、床、壁の各所に傷が見られました。一方で床下地の状態は良好で、大きな破損部等はありませんでした。快適に新生活が送れるよう、水まわり設備は一新し、壁や天井はグレーを基調としたクロスに変更。床は、工期や施工費が抑えられる上張り施工で対応することとなりました。その際、一般的なフローリング材ではなくデザイン性の高いフロアタイルを採用し、ラグジュアリーな空間に仕上げるプランをご提案しました。
| リフォーム箇所 | 間取り変更(和室から洋室)、 壁・天井クロス張り替え、 床フロアタイル上張り 、システムキッチン・洗面化粧台・トイレ・ユニットバス交換、内窓取付ほか | 所在地 | 長崎県長崎市 |
|---|---|---|---|
| 間取り | 3LDK | 構造 | 鉄筋コンクリート造(RC造) |
| 延床面積 | 65㎡ | 築年数(完工時) | 約30年 |
| 建築費 | 約540万円 | 施工期間 | 約1ヶ月 |
| 設計・施工 | すまいるリノベーション |
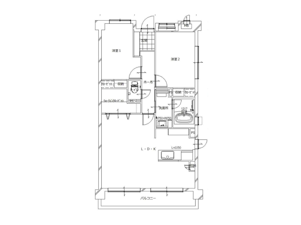
リフォーム前は洋室2部屋、和室1部屋の3LDKの間取りでしたが、お客様の理想とする〝ホテルライクな住まい〟を実現するには、広々とした住空間に再生させる必要があると考えました。そこで、リビングに隣接する6帖の和室を撤去し、大空間のLDKにリノベーションするプランをご提案。和室の押し入れをウォークインクローゼットに変えることで、生活必需品や衣服の収納量を増やし、生活感を抑えるデザインに仕上げました。
築年数を感じさせない、グレートーンで統一した落ち着きのあるリビング。
ご夫婦ふたりの時間をゆったり過ごせる、ホテルライクな空間に生まれ変わりました。
中古マンションを購入されたK様。築年数の経過により水まわり設備の老朽化や床・壁の傷みを感じられたことをきっかけに、今回のリフォームをご決断。水まわりと内装を中心に、快適で心地よい住まいを目指してリノベーションを実施しました。
ご要望は「落ち着いた暗めのトーンで統一し、ホテルのような上質な空間にしたい」というもの。そこで、空間全体をシックな色合いでまとめ、暮らしの中に上質さと安らぎを感じられるデザインを追求しています。
ご提案の途中で当社モデルハウス「アイアンマン」をご見学いただき、実際の空間や素材感を体感されたことで、「こんな雰囲気にしたい」というイメージがより明確に。そこからデザインや色味の方向性が固まり、理想の住まいづくりがスムーズに進みました。
お客様のご要望は
◉全体的に暗めのトーンで落ち着いた雰囲気にしたい
◉ホテルのような上質な空間にしたい
…というもの。そこで空間全体をシックな色合いでまとめ、暮らしの中に上質さと安らぎを感じられるデザインを目指しました。
ご提案の途中で、当社モデルハウス「アイアンマン」をご見学いただき、実際の空間や素材感を体感されたことで、「こんな雰囲気にしたい」というイメージがより明確に。そこからデザインや色味の方向性が固まり、理想の住まいづくりがスムーズに進みました。
空間のテーマは“グレートーンでまとめた大人のホテルライク空間”。壁と天井はグレーを基調としたクロスで仕上げ、床は落ち着いた質感のフロアタイルで統一しました。

グレーのコントラストがもたらす奥行き感と、フロアタイルの自然な艶が調和し、シンプルでありながら上質さを感じる落ち着いた雰囲気に。時間帯によって異なる表情を見せる空間に仕上げました。
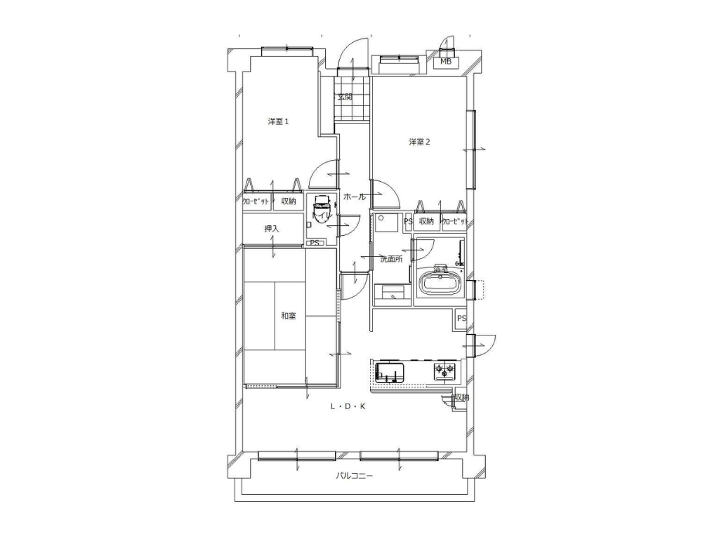
リフォーム前のLDKには、6帖の和室が隣接していました。
そこで今回、リビングに隣接する和室を解体し、LDKの面積を広げる間取り変更を行いました。
和室部分は下地を新しく組み、LDKとフラットにつながるよう丁寧に仕上げています。マンションの規約や構造に配慮しながら、作業を進めます。
リノベーションにより仕切りをなくしたことで、空間が広がりました。光と風が心地よく通り抜ける開放的なLDKの誕生です。
以前は和室だった場所が、今ではご夫婦のくつろぎスペースに。落ち着きと広がりを感じるリビングです。
床はフロアタイル仕上げに。既存の床は状態が良好だったため、上張り施工で対応しました。
デザイン性と耐久性を兼ね備えた素材で、ホテルのような高級感を演出しています。
壁と天井のクロスは、すべてお客様と一緒にカタログを見ながら選定。気に入ったものをサンプルで取り寄せながら決めていきました。
グレーのトーンの中にも温かみを感じるお色味のクロスを採用し、落ち着きと心地よさを両立させています。
玄関の壁には石積調のクロスを採用。立体感のある陰影が上質な印象を与えます。
トイレの壁には、やわらかな曲線が印象的なモダンなクロスを採用。空間に動きと奥行きをもたらし、スタイリッシュな印象に仕上げました。
洋室の一部にはYKK AP「プラマードU」の内窓を設置。補助金制度を上手に活用し、断熱性・防音性の向上を図りました。快適さをプラスしつつ、省エネ面でも嬉しいリフォームです。
デザイン性と使いやすさを兼ね備えたパナソニック「ラクシーナ」のキッチンで、毎日の料理時間をより快適に。シックな色合いが空間全体を引き締め、上質な印象を演出します。
スリムなフォルムと機能性を両立したLIXIL「アメージュ シャワートイレ」。やわらかな曲線模様のクロスと調和し、清潔感とデザイン性を兼ね備えた空間に仕上がりました。
洗面化粧台には、シャープなデザインと収納力を兼ね備えたTOTO「オクターブライト」を採用。シックなカラーでまとめ、清潔感の中にも上質さを感じる洗面空間を実現しています。
バスルームは、上質な黒でまとめたTOTO「サザナ」。やわらかな床の踏み心地と快適な入浴機能で、日々の疲れを癒すリラックス空間を演出します。
暗めのトーンで統一された室内は、まるでホテルのラウンジのように落ち着いた空間。リフォーム前の印象を大きく変え、ご夫婦お二人の暮らしに穏やかな時間をもたらしています。
想像していたかっこいいお部屋になりました。黒やグレーがイメージ通りでよかったです!
K様邸のように、理想の雰囲気や色使いを大切にしながら、暮らしやすさとデザイン性を両立するリフォームを提案しています。ホテルライクな空間づくりに興味のある方は、ぜひ一度、すまいるリノベーションへご相談ください。
K様
マンション全体の改装ということで、新生活への期待を感じながら進めたリノベーションでした。お客様も打合せにとても前向きに取り組んでくださり、一緒に理想の空間を形にしていく過程がとても楽しかったです。