| リフォーム箇所 | 1階・2階の全面リフォーム | 所在地 | 長崎県長崎市 |
|---|---|---|---|
| 間取り | = | 構造 | 木造2階建て |
| 延床面積 | = | 築年数(完工時) | = |
| 建築費 | 約1960万円 | 施工期間 | 約3ヶ月間 |
| 設計・施工 | すまいるリノベーション |
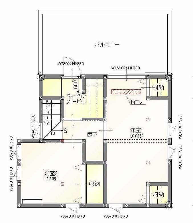
今回のリノベーションでは、細かく区切られていた部屋を整理し、家族5人がゆったりと過ごせるLDKを中心とした間取りへと変更しました。 1階はもともと、5.2帖のダイニングキッチンと複数の居室が分かれている間取りでしたが、壁を取り払い空間をつなげることで、開放感のあるLDKが実現。キッチンは対面型に変更し、家族の様子を見守りながら料理ができるレイアウトにしています。 また、収納が少ないことがお悩みだったため、階段下のデッドスペースを収納として活用。さらに和室には、圧迫感を抑えるために床から少し浮かせた収納を設け、空間に広がりをもたせています。 2階は、もともと和室中心の間取りでしたが、使いやすい洋室へ変更。さらにウォークインクローゼットを設け、家族の衣類をまとめて収納できるようにしています。
長崎市にお住まいのA様ご家族は、ご夫婦とお子さま3人の5人家族。
3人目のお子さまが生まれるタイミングをきっかけに、家族みんなが快適に暮らせる住まいにしたいと、全面リノベーションを計画されました。

もともとの間取りは部屋が細かく分かれており、収納も少ない状態でした。成長していくお子さまたちとこの家で過ごすことを考えると、ゆとりのある空間と使いやすい収納が必要だと感じていたそうです。
冬の寒さも長年の悩みのひとつだったため、断熱性能の改善も今回のリノベーションの大きなテーマとなりました。
間取りの見直し・収納計画・断熱性能の向上、この3つを柱に、家族5人がのびのびと心地よく暮らせる住まいを目指しました。
![]() |
![]() |
家族が自然と集まるLDKをメインに配置し、対面キッチンへと変更しました。お料理をしながらでもリビングの様子を見渡せる、家族みんなにやさしい空間をデザインしています。
LDKに隣接する6帖の和室は、子どもたちの遊び場・お昼寝スペース・来客時の客間など、暮らしのシーンに合わせて柔軟に活用できます。引き戸を開ければリビングと一体的な、開放感のある空間としても使えます。
また、水まわりを使いやすく見直し、回遊動線を意識したレイアウトとしました。キッチン横にはパントリーを設け、すっきり暮らせる収納計画としています。
2階にはウォークインクローゼットを設けるなど収納を充実させ、各洋室と合わせて子どもたちの成長やライフスタイルの変化にも柔軟に対応できる間取りとしました。
もともとは5.2帖のダイニングキッチンに、3帖の洋室と7.5帖の和室が隣接する間取りでした。それぞれが壁や扉で仕切られていたため、空間のつながりが少なく、やや使いにくい印象のある配置でした。
【After】
間取りを見直し、ダイニングキッチンと隣接する洋室・和室をつなげることで、家族がゆったり過ごせるLDKへとリニューアルしました。
キッチンは対面式に変更し、リビングやダイニングを見渡せるレイアウトに。家族の気配を感じながら料理ができる、開放的な空間になっています。

ダイニングを見渡せる開放的なレイアウトに、大容量のパントリーを併設し、家事効率と美しさを両立しました。

ステンレスのシームレスシンクが特徴のクリナップ「ラクエラ」。たっぷりしまえる充実の収納が、毎日のお料理をぐっとラクにしてくれます。
川口技研の室内物干し「ホスクリーン昇降式」。ヒモを引くだけで簡単に竿を上げ下げでき、使わないときはすっきり収納。日常をすっきりと整える、シンプルなデザインも魅力です。
1階のLDKには、つながる6帖の和室をレイアウトしました。
【Before】

各部屋がしっかりと独立した、昔ながらの間取り。それぞれの空間に役割があり、長く家族を支えてきた住まいを、今の暮らしに合わせてアップデートします。
【After】

畳はフローリングより柔らかく転倒時の衝撃を和らげるため、お子さまの遊び場・お昼寝スペースとしても最適です。リビングからいつでも目が届く安心感もあります。
表裏でデザインが変わるLIXILの戸襖引戸「新和風」を採用。リビング側は木目調のクリエラスク、和室側は和柄の襖紙が、ふたつの空間を自然につなぎます。
以前は収納の少なさがお悩みのひとつでした。そこで、毎日の暮らしがもっとすっきり快適になるよう、収納計画を全体的に見直しました。

キッチン横に設けたパントリーで、食材や日用品をまとめて収納。さらに階段下のデッドスペースも収納として有効活用し、すっきりとした空間を保ちます。

和室の収納はお施主様のご希望で、床から浮かせたデザインに。足元に設けた地窓から光が差し込み、畳の間に開放感と抜け感をもたらしています。

クローゼットドアにはLIXIL「ラシッサS」の折れ戸を採用。全開にすると収納内が一目で見渡せ、荷物の出し入れもスムーズです。
スケルトン状態にして、壁・床・窓の断熱施工を行いました。
壁にはグラスウール、床にはスタイロフォームを採用し、隙間なく断熱材を施工。窓は断熱サッシへと交換することで、冷気の侵入と結露を大幅に抑えました。
家の内側から外側まで、熱の逃げ道をしっかりとふさぐことで、冬でも暖かさが持続する住まいへと生まれ変わりました。光熱費の節約にもつながる、家族にやさしい断熱計画です。


2階の洋室は、グレーのアクセントクロスを取り入れた落ち着いた空間。窓まわりにはカーテンではなくブラインドを採用し、オシャレですっきりとした印象に仕上げています。
2方向から自然光を取り込む採光計画で、時間帯を問わず室内にやわらかな光が広がります。ウッドブラインドが光をやさしく拡散させ、グレーの壁と相まって心地よい空間をつくり出しています。
カーテンではなく調光ロールスクリーンを採用。光とプライバシーを同時にコントロールでき、窓まわりをすっきりとおしゃれに仕上げています。
今回のA様邸は、「家族みんながつながり、心地よく快適に過ごせる住まい」を目指し、間取り・収納・断熱・採光のすべてにこだわったリノベーションとなりました。
家族の成長やライフスタイルの変化にも柔軟に対応できるこの住まいが、A様ご家族のこれからの暮らしをより豊かに、楽しいものにしてくれることを願っています。
リノベーションを検討されている皆様にとって、少しでも参考になれば幸いです。
A様
お子さまの誕生を機に、寒さの解消や収納の充実、家族5人がゆったり過ごせる広いLDKなど、さまざまなご要望を形にすることができました。3人のお子さまがリビングで元気いっぱい駆け回る笑顔を想像すると、担当者としてこの上ない喜びです。